1 РАМА КОЖУХА solo by AL-KO трактор T 23-125.6 HD V2 Артикул: 127363 с 10/2019 года
2 РАМА СЦЕПЛЕНИЕ solo by AL-KO трактор T 23-125.6 HD V2 Артикул: 127363 с 10/2019 года
3 КОЛЕСА РЕМЕНЬ ШКИВ solo by AL-KO трактор T 23-125.6 HD V2 Артикул: 127363 с 10/2019 года
4 КОРОБКА ПЕРЕДАЧ solo by AL-KO трактор T 23-125.6 HD V2 Артикул: 127363 с 10/2019 года
5 ПОДКЛЮЧЕНИЕ ПРИВОДА solo by AL-KO трактор T 23-125.6 HD V2 Артикул: 127363 с 10/2019 года
6 ДЕКА РЕМЕНЬ НОЖ АДАПТЕР ШКИВ solo by AL-KO трактор T 23-125.6 HD V2 Артикул: 127363 с 10/2019 года
7 АККУМУЛЯТОР solo by AL-KO трактор T 23-125.6 HD V2 Артикул: 127363 с 10/2019 года
8 ТРАВОСБОРНИК solo by AL-KO трактор T 23-125.6 HD V2 Артикул: 127363 с 10/2019 года
9 ПРОВОДКА solo by AL-KO трактор T 23-125.6 HD V2 Артикул: 127363 с 10/2019 года
10 ПРОВОДКА ПОДКЛЮЧЕНИЯ solo by AL-KO трактор T 23-125.6 HD V2 Артикул: 127363 с 10/2019 года
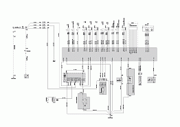
11 ЭЛЕКТРОСХЕМА solo by AL-KO трактор T 23-125.6 HD V2 Артикул: 127363 с 10/2019 года